マンションリフォーム完成見学会 2ヶ所同時開催のお知らせ
EVENT
2014年11月29日(土) 会場①10:00〜17:00 会場②11:00〜16:00
会場①福岡市博多区元町2-2-1 ローレルハイツ南福岡 4棟内
会場②福岡市中央区港3-10-26 ロワールマンション西公園内
こんな住まいをご覧いただけます
マンションリフォーム完成見学会 2ヶ所同時開催のお知らせ
施主様のご好意により、リフォーム完成見学会を催すこととなりました。
今後のご参考にご覧になりませんか?
2ヶ所共通 ■日時:平成26年11月29日(土)
会場① 10:00~17:00
会場② 11:00~16:00
☆ ★ ☆ ★ ☆ ★ ☆ ★ ☆ ★ ☆ 内覧会場 その① ☆ ★ ☆ ★ ☆ ★ ☆ ★ ☆ ★ ☆
■場所:福岡市博多区本町2-2-1 ローレルハイツ南福岡 4棟内
■時間 10:00~17:00
※ダイニチの旗が目印です

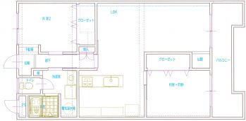
★★★ 今回のリフォームポイント ★★★
①段差の多かった室内を、置き床で全ての部屋をバリアフリーにして、部屋の間仕切りをすっきりまとめました!
②水廻りを一新しました!
③窓ガラスを2重窓にしたことで、冷暖房の効きもよくなりました!
④一間幅のアクセント壁紙で、お部屋それぞれのイメージを変えました!

☆ ★ ☆ ★ ☆ ★ ☆ ★ ☆ ★ ☆ 内覧会場 その② ☆ ★ ☆ ★ ☆ ★ ☆ ★ ☆ ★ ☆
■場所:福岡市中央区港3-10-26 ロワールマンション西公園内
■時間 11:00~16:00
※ダイニチの旗が目印です

★★★ 今回のリフォームポイント ★★★
①水廻りを一新しました!
②間取変更し、キッチンは対面にしました!
③内装も一新!和室を洋室に!
④押入をクローゼットにしました!

⇩ 
開催概要
| 日程 | 2014年11月29日(土) 会場①10:00〜17:00 会場②11:00〜16:00 | 場所 |
会場①福岡市博多区元町2-2-1 ローレルハイツ南福岡 4棟内 会場②福岡市中央区港3-10-26 ロワールマンション西公園内 |
|---|
お気軽にご来場ください
ゆっくりご見学いただくため
ご予約をおすすめします
- マンションリフォーム完成見学会 2ヶ所同時開催のお知らせ
- 2014年11月29日(土) 会場①10:00〜17:00 会場②11:00〜16:00
※営業を目的としたお問合せはご遠慮下さい。
下記のフォームに必要事項をご記入の上、送信ボタンを押してください。
※ご希望日時にイベントの日時を指定してください。

![電話でのお問合せ:0120-18-2292[受付]9:00~18:00 [定休]日祝、第1・第3土曜日](/shared/img/common/tel.png)

